Perfektní lokalita k bydlení i k investici.
K prodeji prosluněný panelový byt s dispozicí 2+1, lodžie nacházející ve velmi žádané a oblíbené lokalitě, na ulici J. Z Poděbrad. Lokalita a občanská vybavenost je tu na jedničku. V místě kompletní občanská vybavenost včetně školky a základní školy, s pohodlným dosahem do centra města.
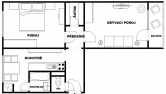
Bytová jednotka je umístěna ve 2.patře panelového domu po kompletní revitalizaci a její výměra podlahové plochy činí 56m2 + 4m2 lodžie. K bytu náleží sklep o výměře 3,4m2. Velkou výhodou bytu jsou neprůchozí pokoje se zachovalými parketami. Bonusem je šatna umístěna mezi ložnicemi, která skýtá dostatek úložného prostoru.
Byt je velice světlý a slunný s orientací na JV a JZ stranu s dostatkem slunečního svitu. Prosvětlené pokoje opticky zvětšují podlahovou plochu bytu. Nemovitost je ve velice udržovaném stavu s průběžnými úpravami. Má však velký potenciál k úpravám dle vlastních představ a jeho proměnou můžete získat svěží osobitý domov.
Jedná se o družstevní byt s možností převodu bytu do osobního vlastnictví. Nižší provozní náklady na bydlení (uhrazen celý úvěr na revitalizaci) a strategická poloha nemovitosti nedaleko centra města, zaručují mimo jiné i jedinečnou investiční příležitost koupě bytu za účelem následného pronájmu.
Koupě tohoto bytu je taktéž s ohledem na jeho charakter a již zmíněné výhody dané lokality bezpečnou investicí do budoucna.
Cena uvedena vč. právních služeb.





























